ein Blick hinter die Fassade von iPb





sicher planen,
mit iPb
Die meisten Bauschäden sind auf Planungs- und Ausführungsfehler an der Außenhülle zurückzuführen.
Als Fassadenfachplaner unterstützt iPb Ingenieurbüro Blei Bauherren, Architekten und Investorengruppen bei allen Themen rund um die Außenhülle von Gebäuden.

richtig planen,
mit iPb
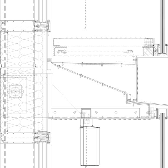
iPb erarbeitet ausführungsorientierte Detaillösungen in CAD und schreibt die Fassade qualitäts- und kostenorientiert aus.
Durch Unterstützung der örtlichen Bauleitung sichert iPb die Ausführungsqualität.

kompetent planen,
mit iPb
langjährige Erfahrung
Seit über 60 Jahren planen wir Fassaden.
Seit über 25 Jahren als eigenständiges unabhängiges Büro.
weltweite Planung
Die Leistungen unseres Fachplanungsbüros werden von uns für Projekte im gesamten Bundesgebiet und teilweise weltweit angeboten und ausgeführt.
breite Vernetzung
Wir sind Mitglied im UBF (Unabhängige Berater für Fassadentechnik e.V.) und in verschiedenen Arbeitskreisen rund um die Fassade.
mit iPb gelingt Ihr Projekt
was können wir für Sie tun?
jahrzehntelange Erfahrung,
die Chronik von iPb

haben wir Ihr Interesse geweckt?
planen Sie Ihr nächstes
Projekt mit uns

